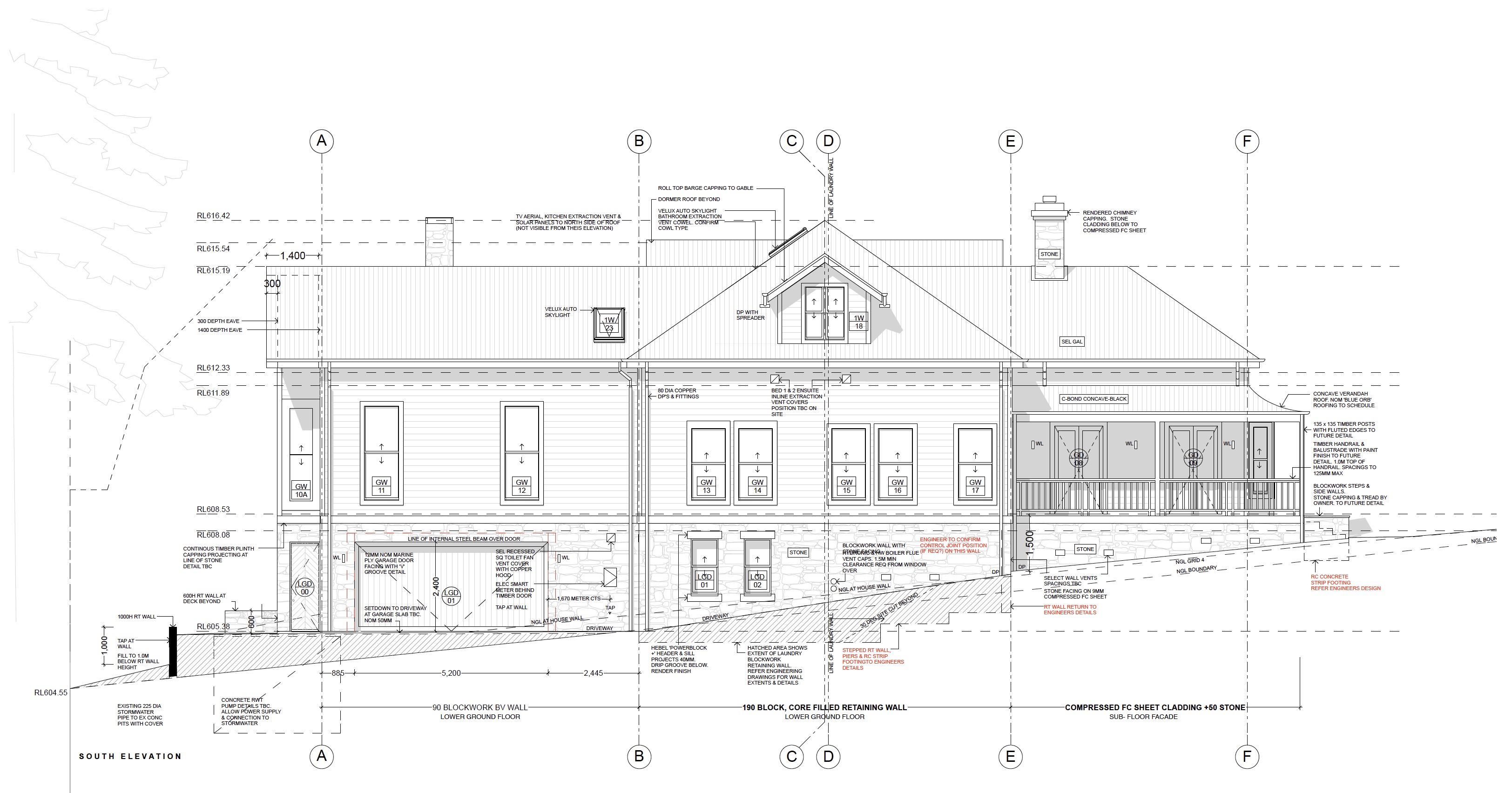
use the original elevation only white wash timber weatherboard sandstone to ground floor walls copper gutters and downpipes white window trims silver galvanised corrugated sheet roof and verandah roof low height 400mm box hedges along the sloping driveway dont change roofline or add any new windows or features