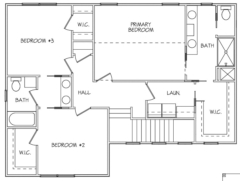
convert this floor plan into a realistic isometric 3d view show the space from a top down view with walls furniture and details visable carpet in all of the bedrooms and the bedroom closets wood flooring in the hallway and bathrooms light cabinetry and white countertops washer and dryer in the laundry room carpet on the steps