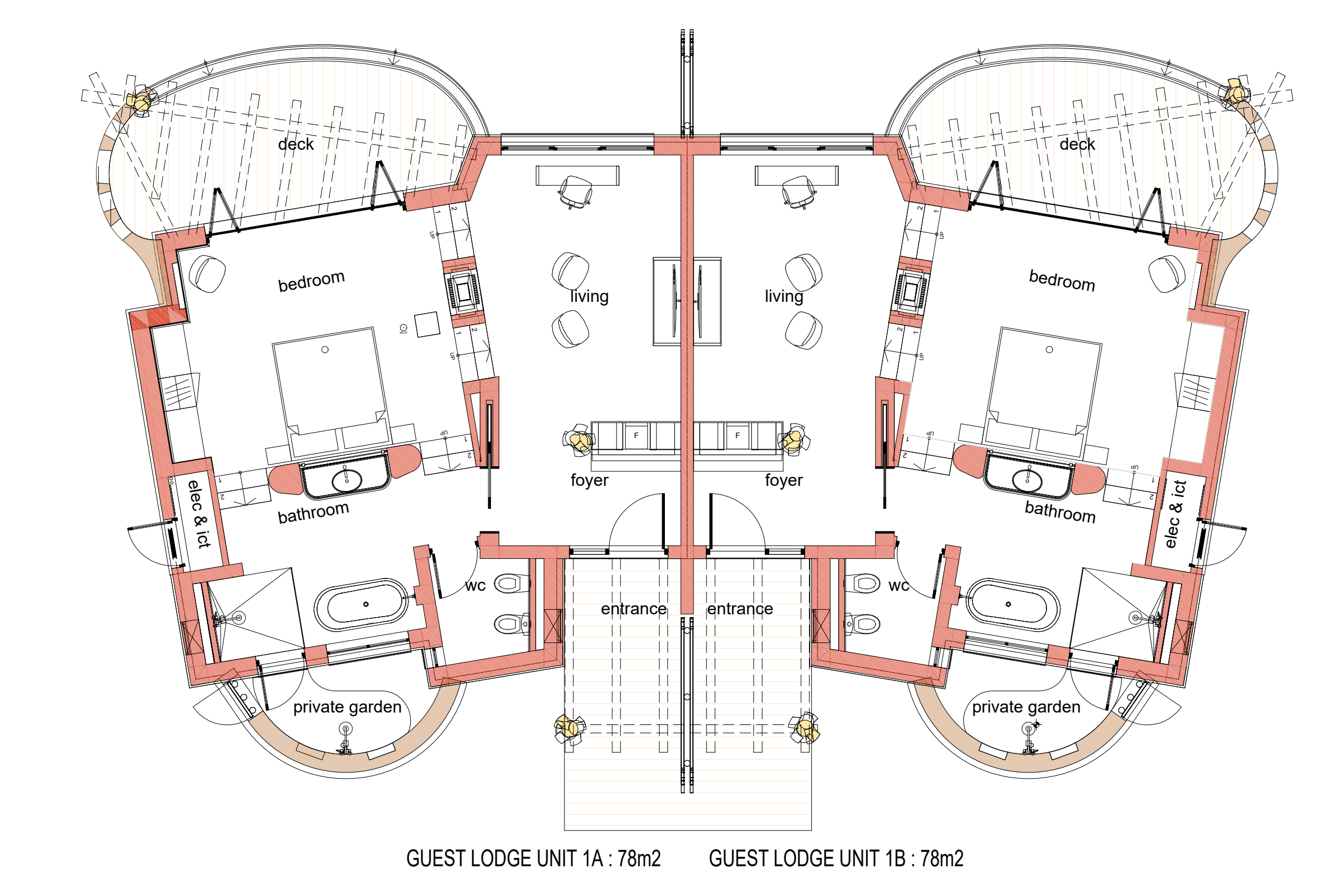
render this image as a plan view of a high end lodge internal floors are beige polished concrete