archsynth
Sign Up
Open main menu
Image to 3d model
Compare
Testimonials
Contact us
Log in
→
Signup
Archsynth generation
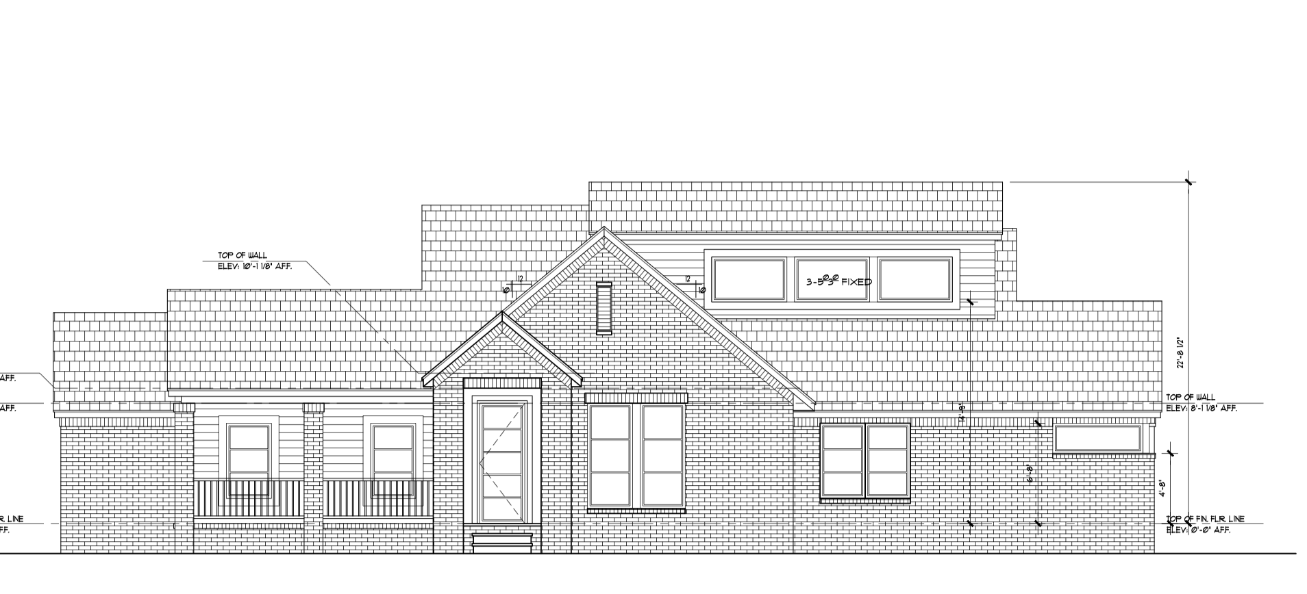
Input image
Copy Prompt
exterior shot exterior cladding is brick except for the dormer which should be a lap cedar siding brick is painted popular modern colors windows are black aluminum windows with no grid patterns image should show entire front of house
Concept to Render
strength 100
seed 6844
Start Creating Renders Now
Related Posts
Start Creating Renders Now
View more