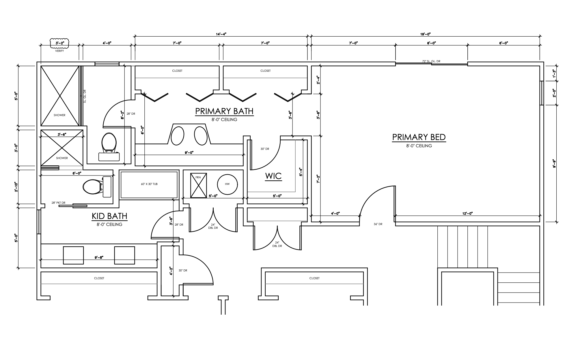
convert this floor plan into a modern isometric 3d view of a full house show the space from an elevated angle with furniture walls and details visible remove additional sink vanity in kids bathroom add in tile to the bathrooms floors use the same furniture as shows on the plan do not change the orientation of the floorplan