archsynth
Sign Up
Open main menu
Image to 3d model
Compare
Testimonials
Contact us
Log in
→
Signup
Archsynth generation
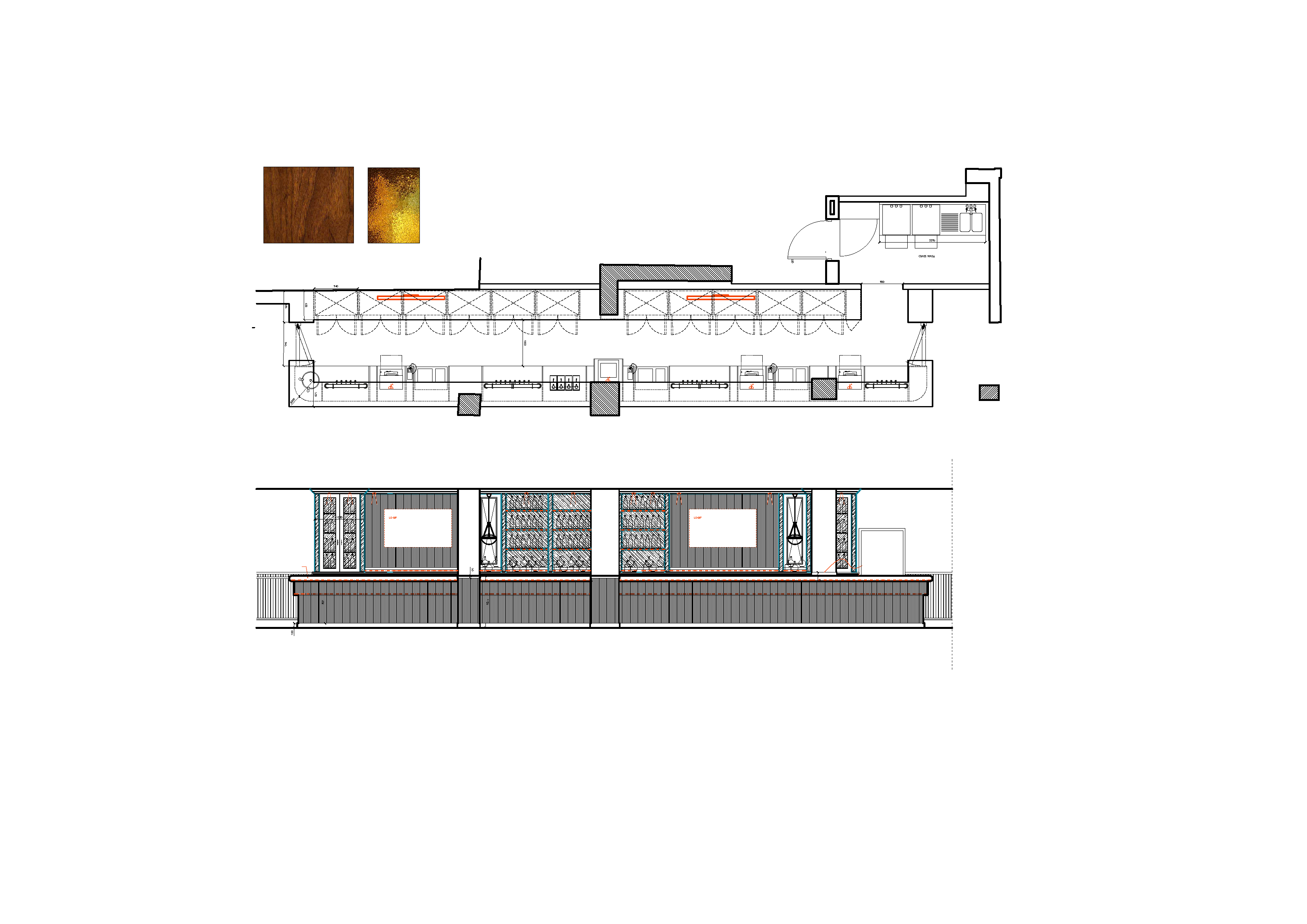
Input image
Copy Prompt
victorian bar and back fitting stained in walnut with gold mirror
Design Board to Image
strength 75
seed 731
Start Creating Renders Now
Related Posts
Start Creating Renders Now
View more