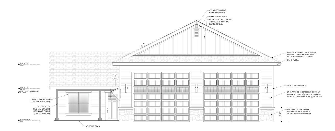
render this elevation of a shop do not change the architecture add any roof lines etc do not add glass to the garage doors the beams and posts should be stained wood the siding and trim should be color indicative of the pacific northwest architecture the trim should be a dark grey colors