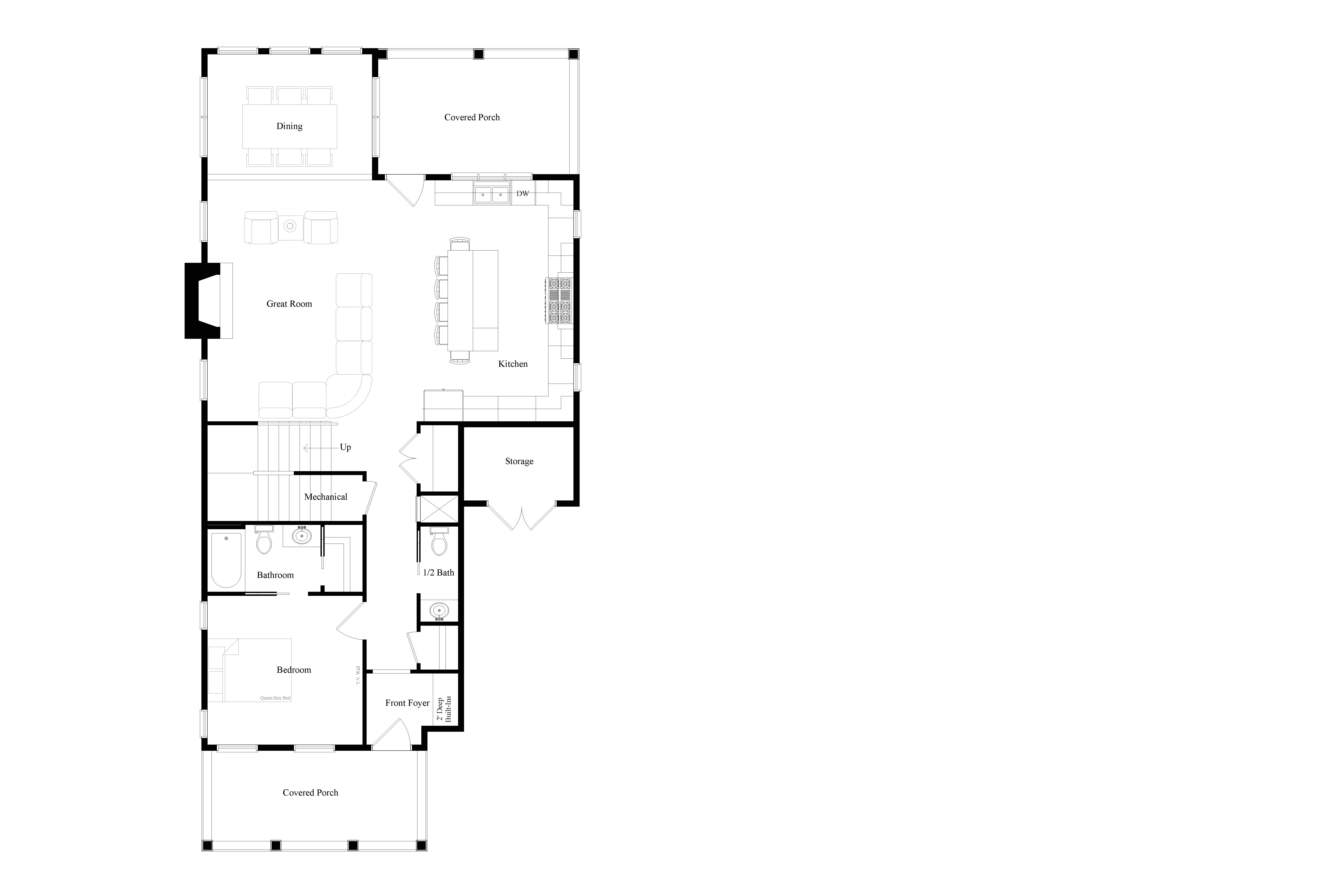
convert this floor plan into a realistic isometric 3d view of a full house show the space from an elevated angle with furniture walls and details visible kitchen sink is on back wall wth window above sink outside material is white board and batt siding stone fireplace with wood nmantle and tv above mantle light oak flooring everywhere except for tile in bathrooms white windows and trim use the same furniture as shows on the plan do not change the orientation of the floorplan