archsynth
Sign Up
Open main menu
Image to 3d model
Compare
Testimonials
Contact us
Log in
→
Signup
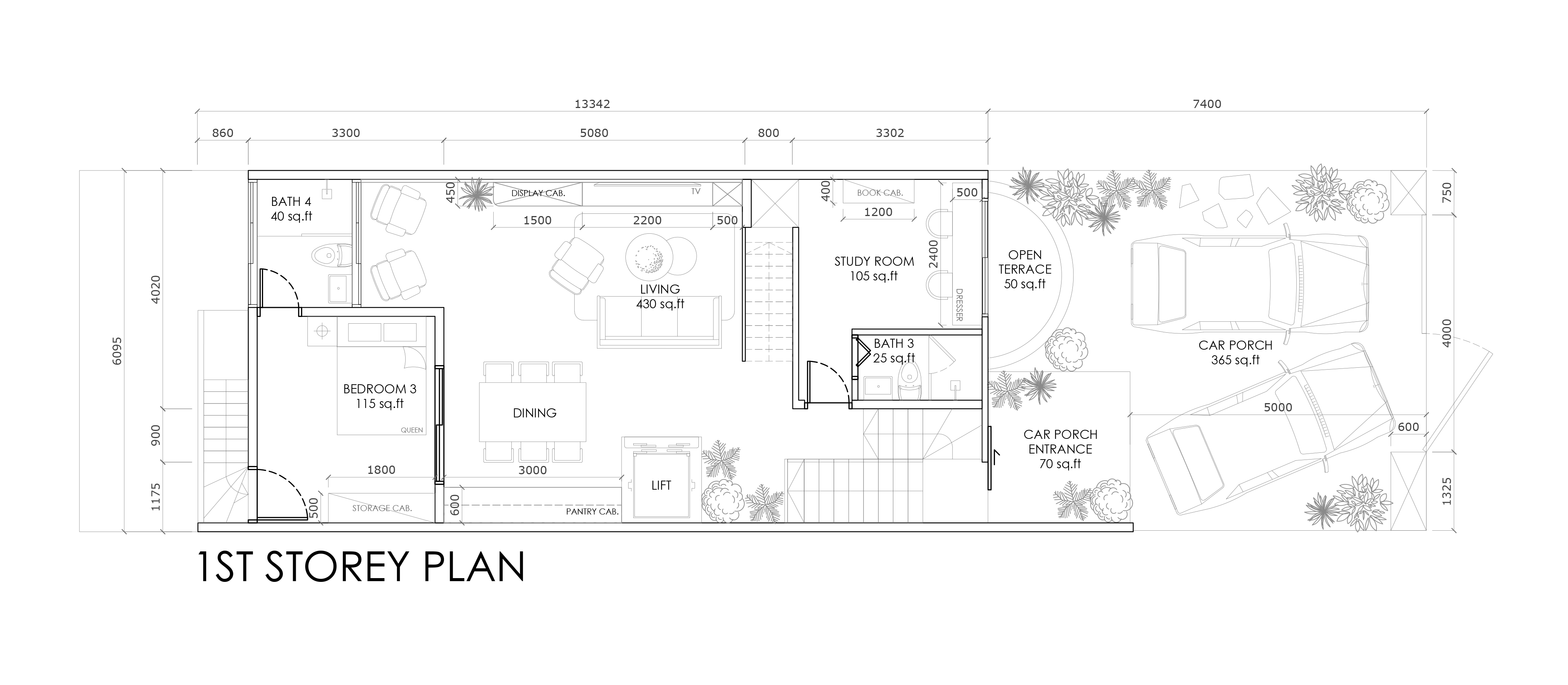
Archsynth generation
Input image
Copy Prompt
modernist create birds eye view based on this layout architecture
by Style
strength 75
seed 2579
Start Creating Renders Now
Related Posts
Start Creating Renders Now
View more