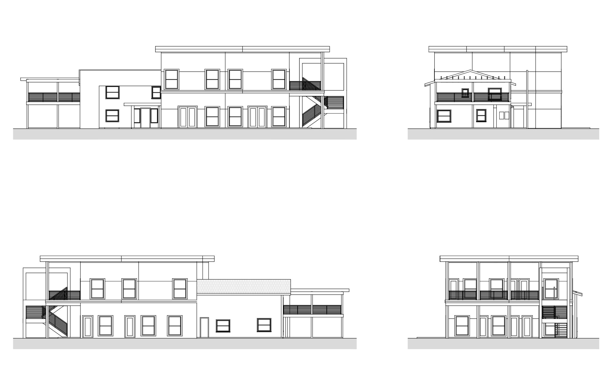
create a rendering of this office building which will be light base color with contrast and trim and some accents wood and stone textures make the thing look dynamic sits in a south florida settings so make the landscape to match so and put some trees and ferns on top of the planters