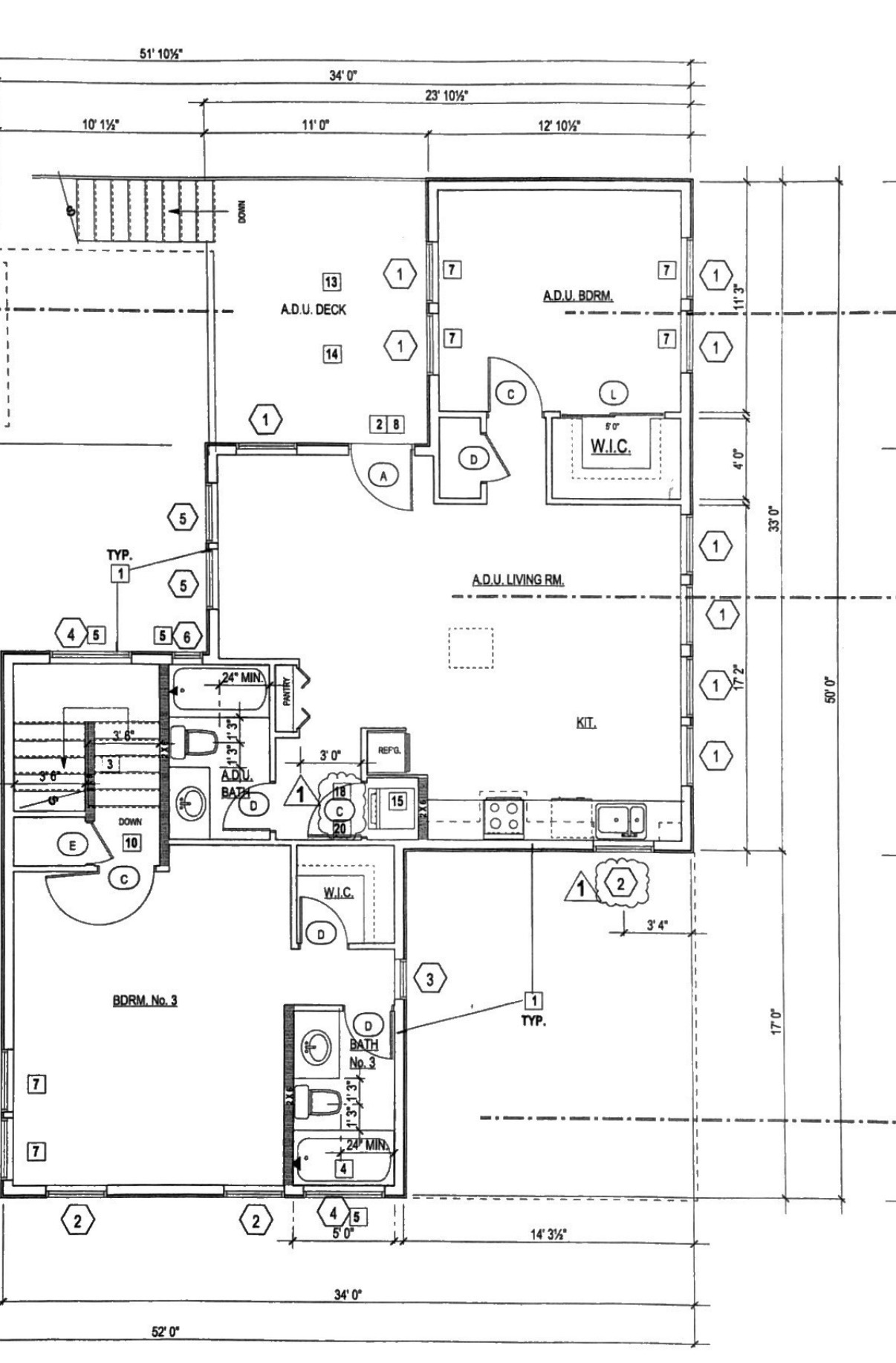
this image is a 2d floor plan convert it into a 3d model and renders use the exact adu layout from the floor plan do not invent a new building shape do not create an exterior facade image generate 1 a top down 3d furnished floor plan render and 2 one interior perspective per room keep walls doors windows and room sizes exactly as shown if any part of the plan is unclear keep it simple rather than changing layout style simple modern farmhouse warm white walls light oak floors white shaker cabinets quartz counters matte black fixtures minimal decor realistic daylight architecture