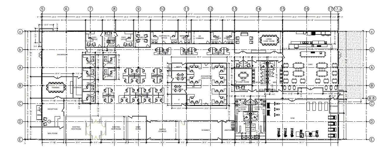
convert this 2d architectural floor plan into a realistic top down rendered view use natural wood parquet flooring texture for all living areas and bedrooms light ceramic tiles for the bathrooms and kitchen place realistic modern furniture sofas beds dining table chairs kitchen appliances in appropriate locations add shadows and lighting for depth and use neutral tones with scandinavian design style maintain scale and proportions according to the original cad plan the walls should have a clean white paint texture and interior doors should be light wood windows should appear with slight reflections architecture