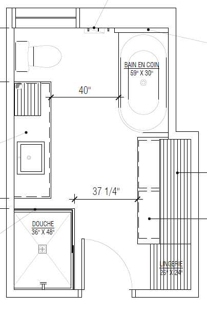
convert this floor plan into a realistic isometric 3d view of a bathroom show the space from an elevated angle with furniture walls and details visible c ramique grise au plancher c ramique gris fonc douche use the same furniture as shows on the plan do not change the orientation of the floorplan