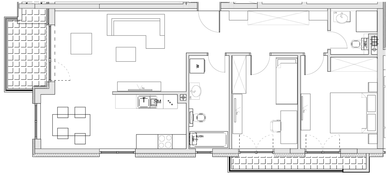
convert the provided 2d architectural floor plan into a highly accurate 3d apartment visualization critical instructions do not violate preserve exact geometry from the floor plan do not change layout proportions wall thicknesses or room sizes do not add remove or reinterpret architectural elements every wall door window and opening must match the plan precisely furniture must only be placed if clearly defined in the plan do not redesign interior or improvise layout this is a translation task from 2d to 3d not a design task spatial parameters floor to ceiling height 2 8 meters wall thickness follow drawing exactly and make the cross section gray door and window positions exact placement from plan output type top down 3d floor plan bird s eye view slight perspective like real estate visualization visual style neutral realistic materials light wood flooring white walls minimal textures soft global illumination natural daylight evenly distributed clean readable composition render quality photorealistic sharp details realistic shadows and reflections balanced exposure camera top view with slight angle negative constraints no artistic reinterpretation no layout changes no added decorative elements not present in plan no unrealistic proportions no random furniture no stylization that reduces clarity of the plan the result must look like a precise built version of the provided floor plan not a conceptual interpretation