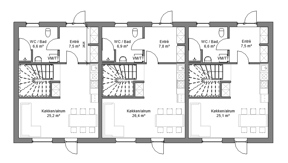
interior 2d floor plan add people to rooms