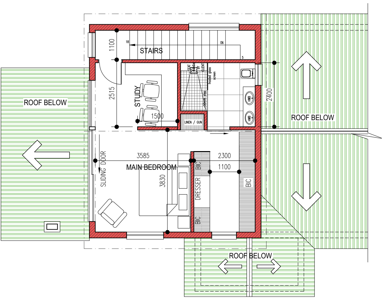
interior from the top