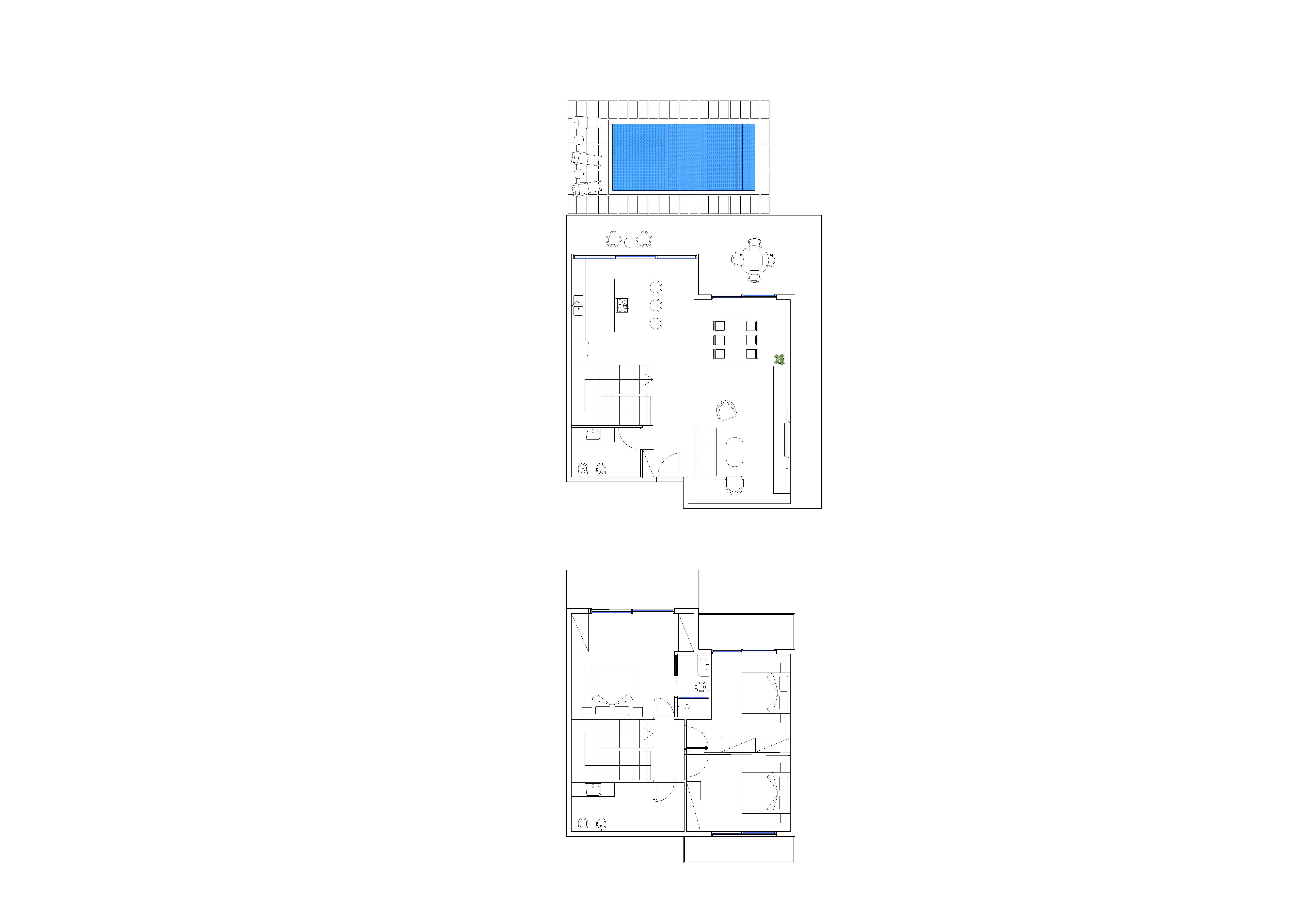
convert this floor plan into a realistic isometric 3d view of a full house show the space from an elevated angle with furniture walls and details visible render a modern two story house with a pool in a serene sunlit environment use a calming sky blue for the pool and clean white for exterior and interior walls for the interior incorporate warm wooden textures for floors and furniture paired with soft beige and pastel accents for a cozy atmosphere trees and small plants around the pool should have vibrant green leaves adding life and contrast the whole setting should feel inviting and luxurious with a minimalist design use the same furniture as shows on the plan do not change the orientation of the floorplan