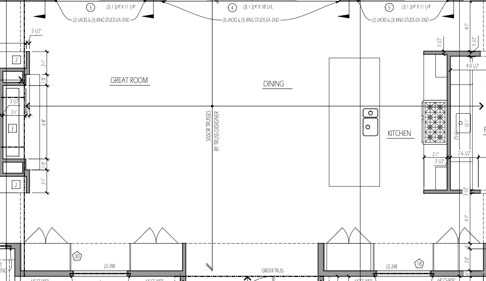
convert this floor plan into a realistic isometric 3d view of a full house show the space from an elevated angle with furniture walls and details visible show dining table parallel to kitchen island and furniture grouping near fireplace with 4 chairs facing each other and one sofa facing fireplace use the same furniture as shows on the plan do not change the orientation of the floorplan