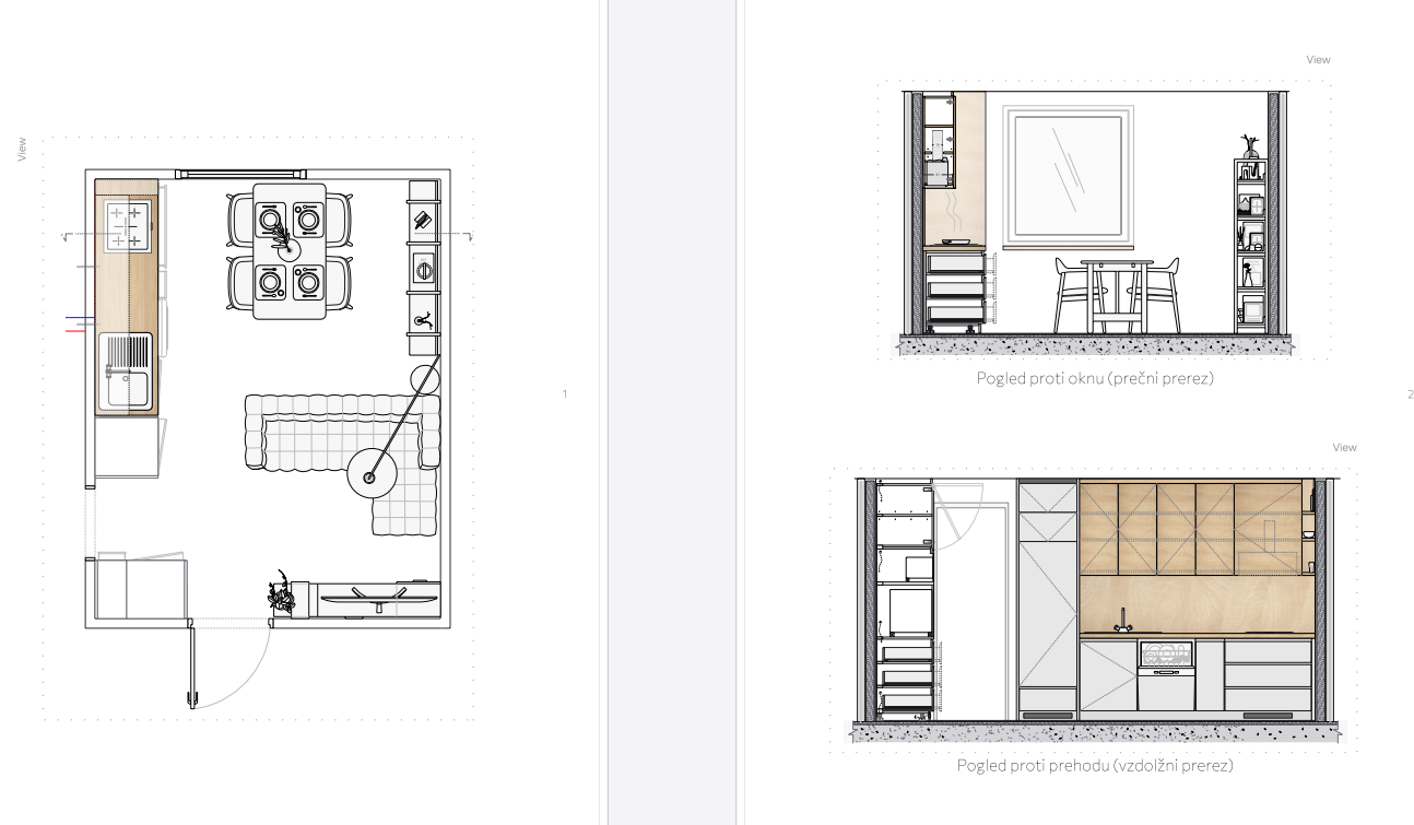
convert this floor plan into a realistic isometric 3d view of a full house show the space from an elevated angle with furniture walls and details visible on the picture there are floor plan and two elevations of the kitchen create a 3d realistic render of the kitchen add realistic lightning and accessories the counter top and upper cabinets are oak cover all other fronts are white also the walls are white the backsplash in also oak the wood is light make it feel homey maintain precision use the same furniture as shows on the plan do not change the orientation of the floorplan