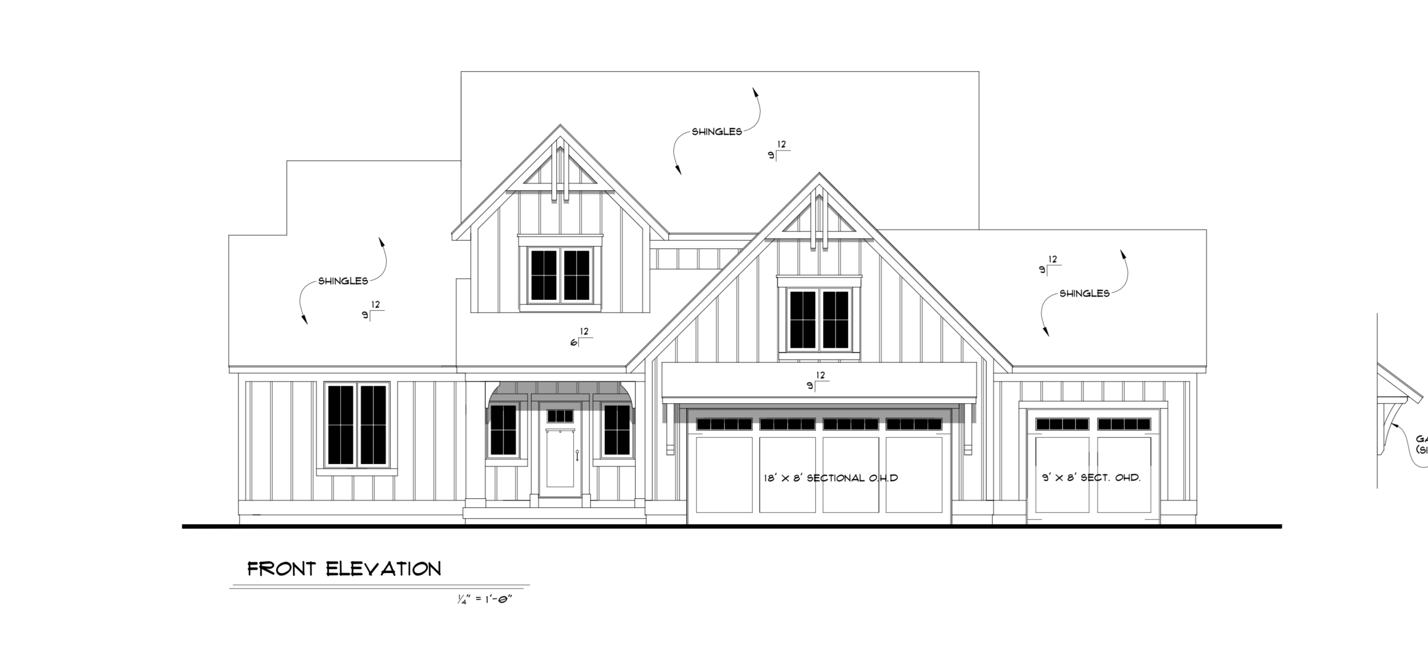
make is modern white and black remove dormers