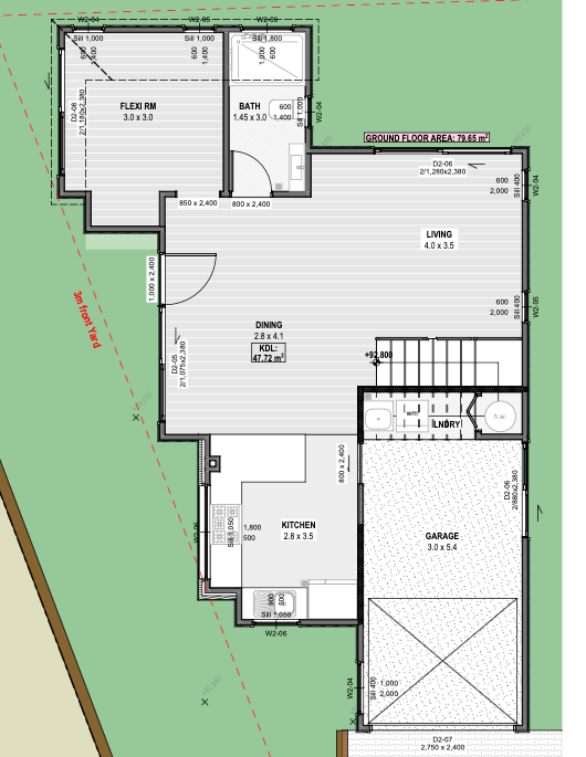
transform this architectural floor plan into a highly realistic humanized floor plan preserve 100 of the original layout wall positions openings structure thickness furniture placement circulation areas proportions and dimensions do not redesign reinterpret move resize or modify any architectural element do not change the scale ignore all texts annotations and dimension numbers focus only on the architectural geometry do not put any text in there apply realistic top view materials and textures natural wood flooring with subtle grain variation soft fabric texture on bed and sofa with visible folds realistic bedding layers and pillows with natural volume bedrooms and stairs use carpet throughout bathrooms and laundry use white cream colored square floor tiles matte painted walls with slight tonal variation subtle shadowing under furniture for depth realistic rugs with soft texture desk surface with light reflection and material response accurate perspective strictly in orthographic top view no camera distortion kitchen ensure the sink location and the exact number of sinks strictly match the provided 2d plan use a gas hob instead of an electric induction cooktop whenever there is an arrow drawn near a door on the 2d plan render it as a sliding door the red line is fire wall treat it as a normal wall but no windows lighting soft ambient daylight simulation gentle global illumination soft contact shadows subtle depth separation between spaces enhance realism with micro details slight fabric wrinkles wood grain variation soft shadow gradients minimal surface imperfections natural color balance style professional architectural presentation high end real estate humanized floor plan clean elegant and realistic ultra high resolution balanced color grading sharp but natural finish maintain strict architectural accuracy and original proportions