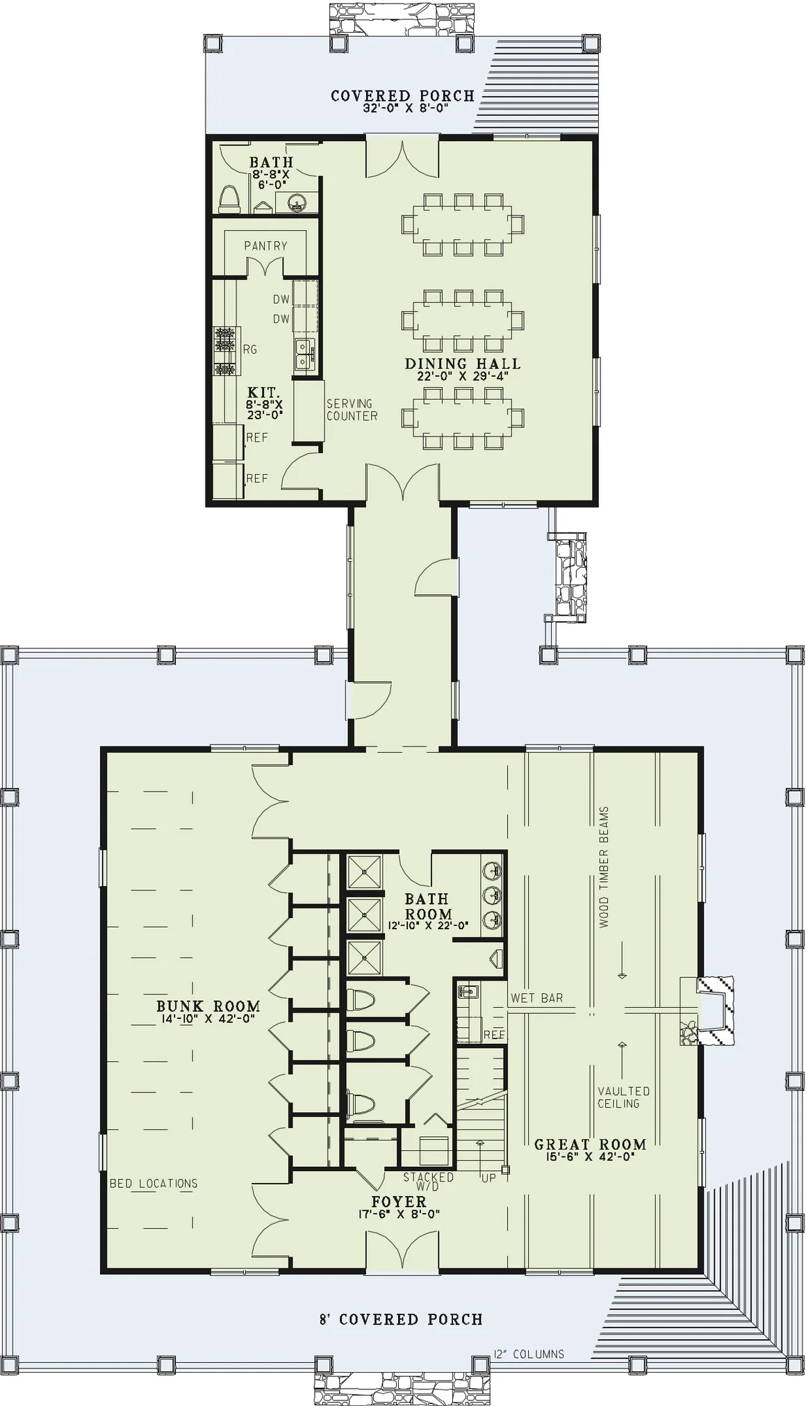
create a top down 3d floor plan rendering based exactly on the uploaded plan maintain all walls rooms and dimensions add realistic furniture wood floors in great room dining tables in dining hall bunk beds in bunk room soft lighting subtle shadows orthographic top down view