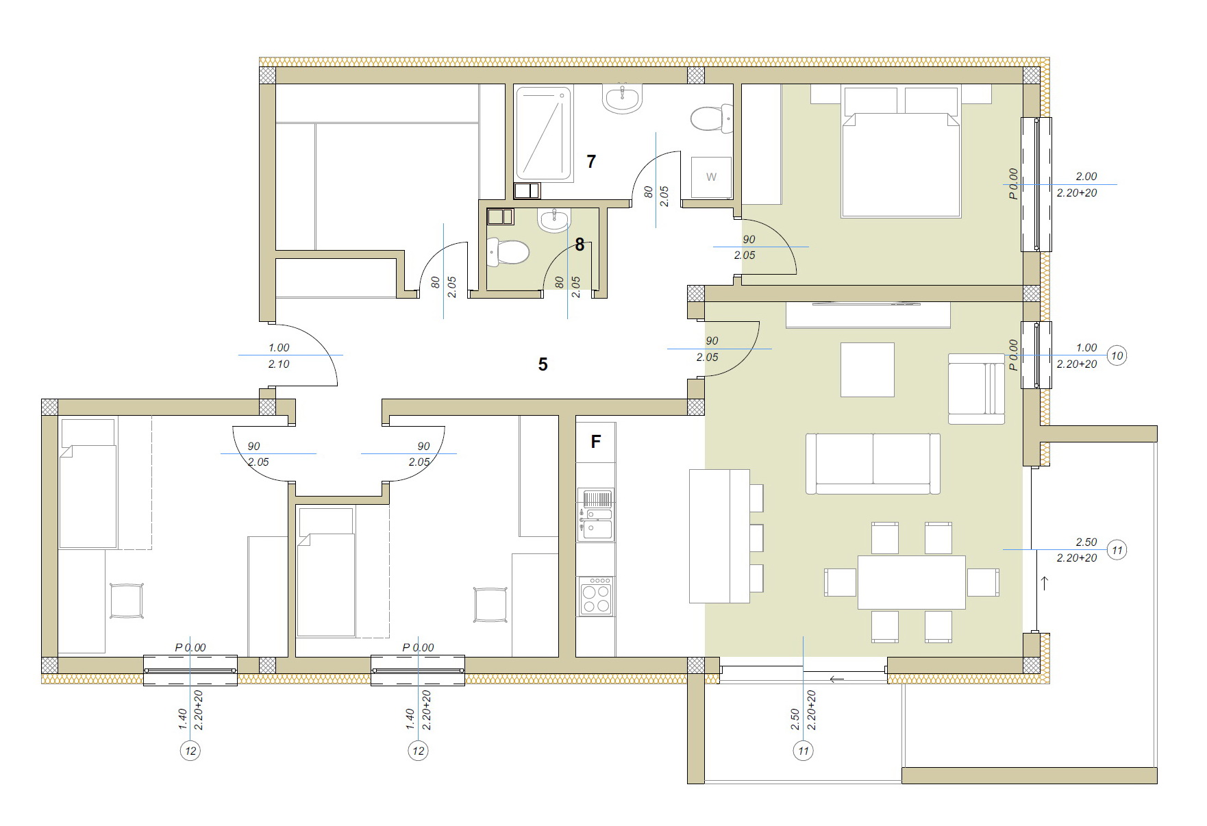
isometric 3d floor plan generated from the provided apartment layout maintain correct proportions and room layout low wall height visible furniture modern minimal interior design soft daylight clean white background architectural visualization real estate presentation