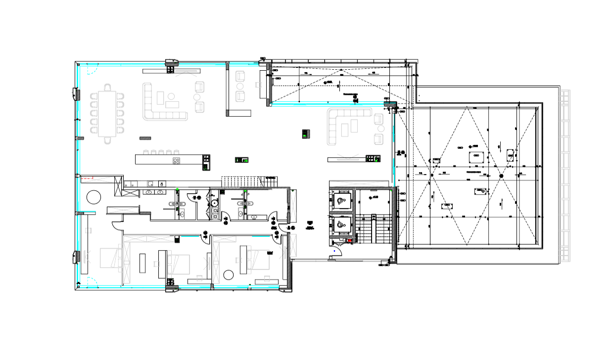
convert this floor plan into a realistic isometric 3d view of a full house show the space from an elevated angle with furniture walls and details visible make warm light the rooms to the far right and the one above it are terraces create interior light use the same furniture as shows on the plan do not change the orientation of the floorplan