archsynth
Sign Up
Open main menu
Image to 3d model
Compare
Testimonials
Contact us
Log in
→
Signup
Archsynth generation
Input image
Copy Prompt
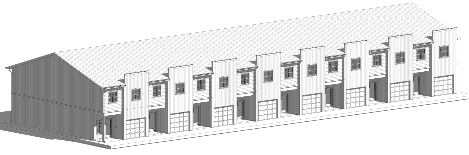
brown accent siding on front vertical towers only brown garage door to match white siding horizontal on sides and above porches white oak stained craftsman front doors brown shingle roof
by Words
strength 75
seed 117
Start Creating Renders Now
Related Posts
Start Creating Renders Now
View more