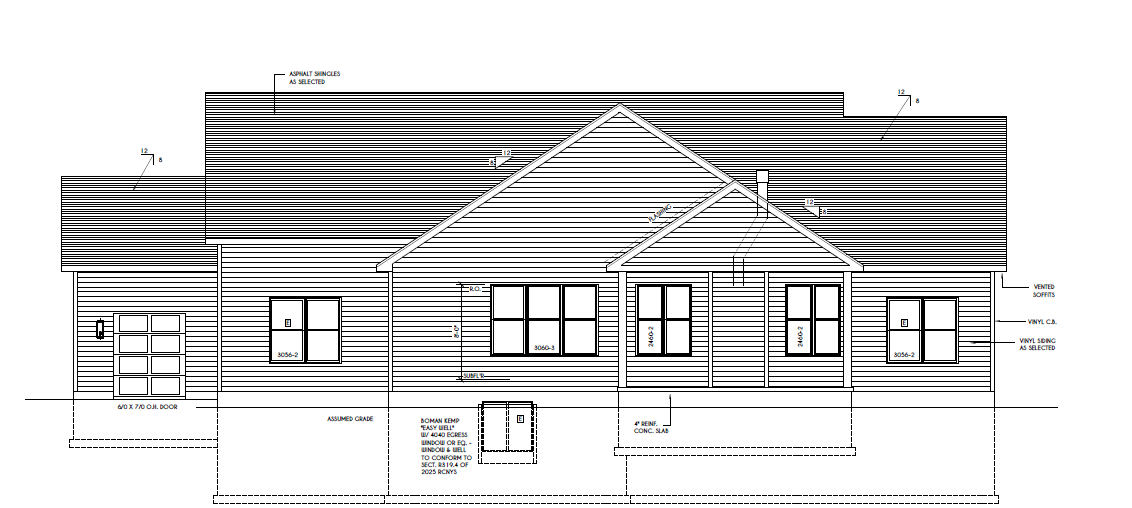
create a 3d rear rendering with all structural elements drawn untouched apply the following selections a wolverine blue storm siding and timberline hdz charcoal black shingle roof dutch quality stone elkwood weather ledge stone veneer white windows white trim there are no doors except the golf cart size garage door this should be mahogany seed 10