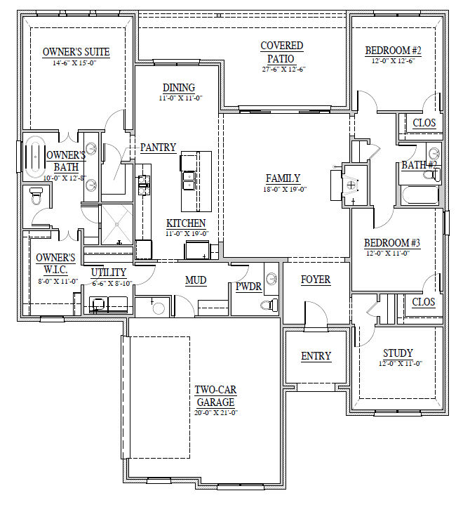
convert this floor plan into a modern isometric 3d view of a full house show the space from an elevated angle with furniture walls and details visible color the floor of the garage a grey concrete color use the same furniture as shows on the plan do not change the orientation of the floorplan