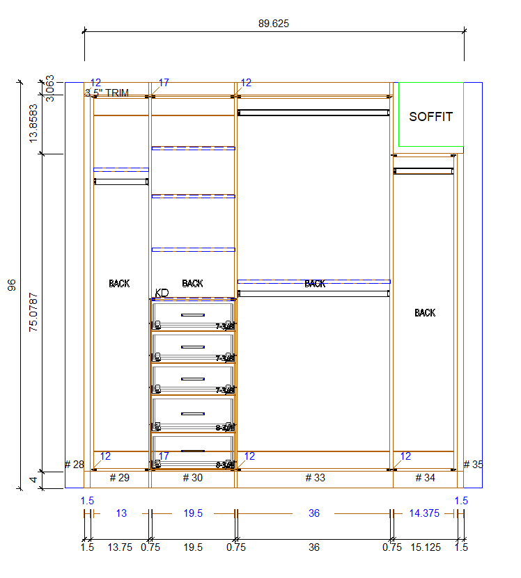
turn these elevations into a real closet