archsynth
Sign Up
Open main menu
Image to 3d model
Compare
Testimonials
Contact us
Log in
→
Signup
Archsynth generation
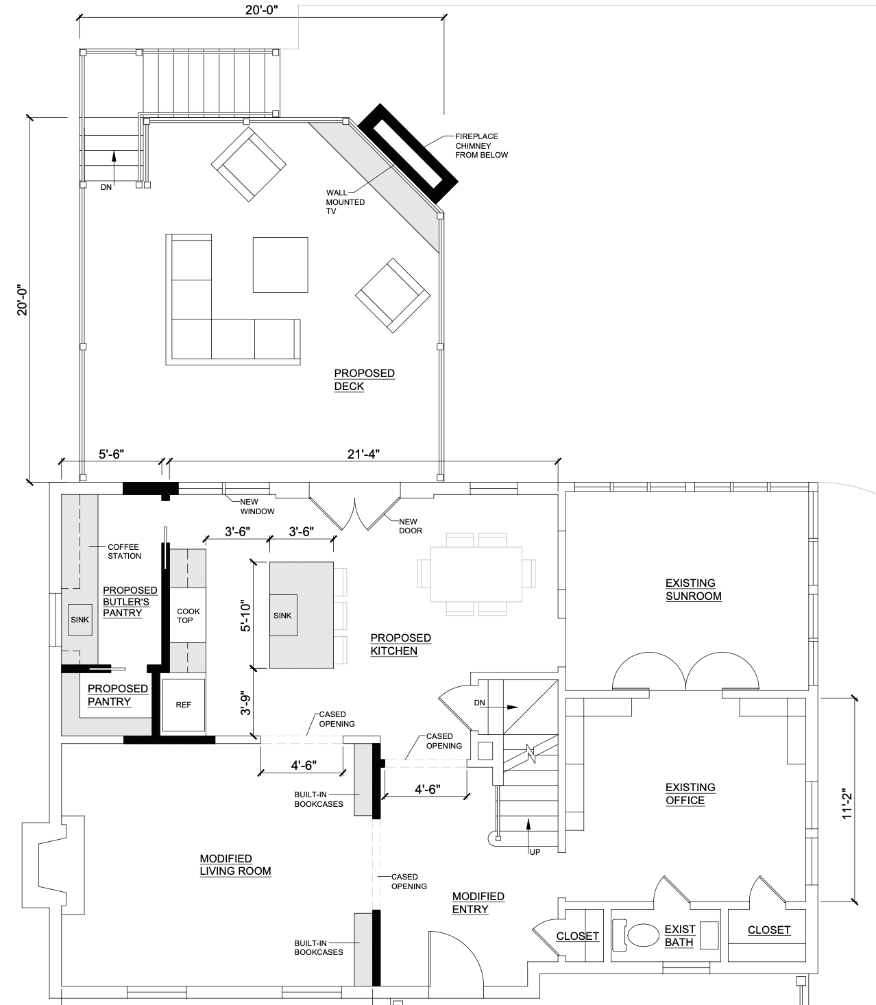
Input image
Copy Prompt
i d like to take this and make a 3d render of what the space could look like from above our style is pretty classical with a touch of boho and an elegant chic color palette with creams blues and warm wood tones
Maintain Colors (v2)
strength 75
seed 10
Start Creating Renders Now
Related Posts
Start Creating Renders Now
View more