archsynth
Sign Up
Open main menu
Image to 3d model
Compare
Testimonials
Contact us
Log in
→
Signup
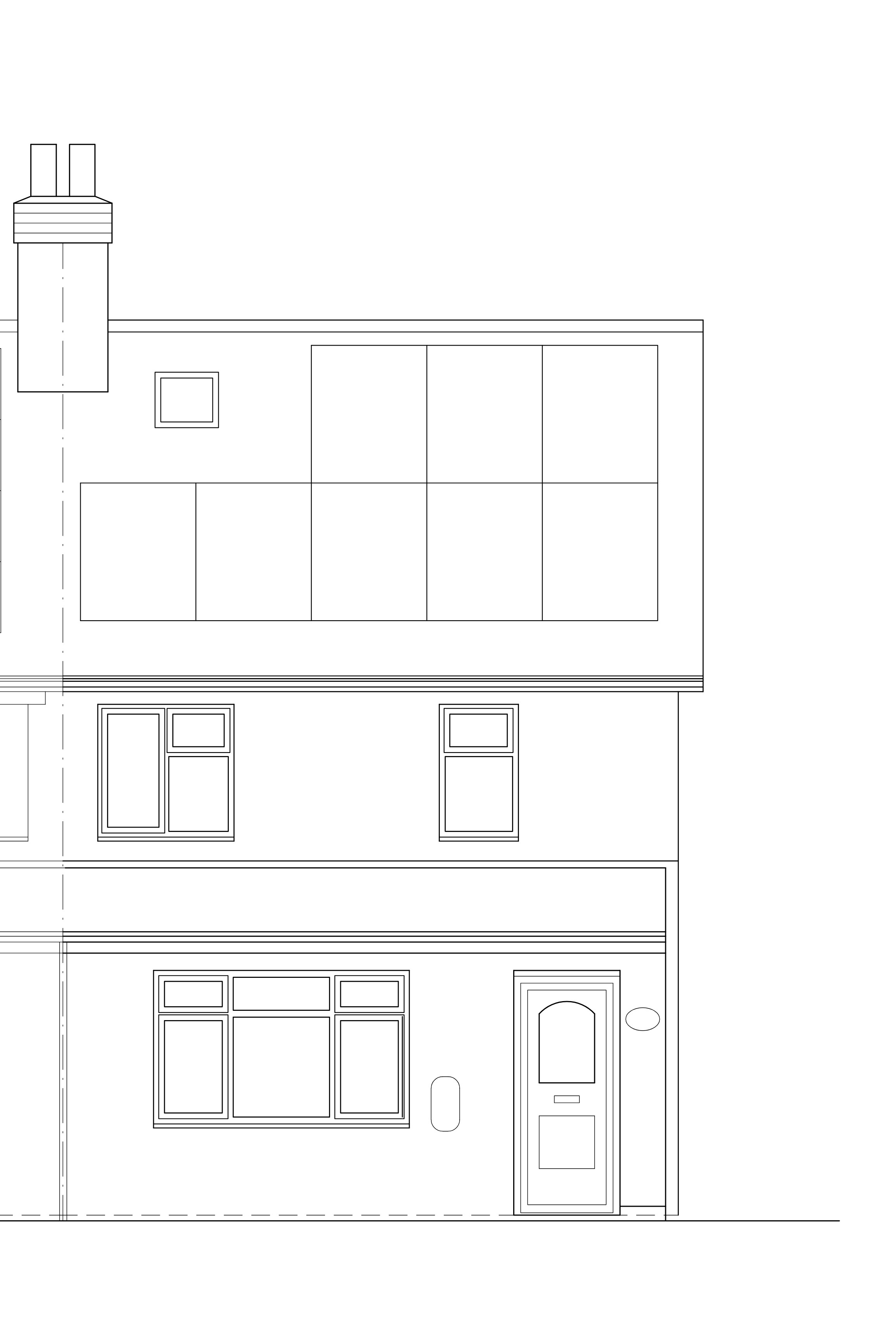
Archsynth generation
Input image
Mood Board
Copy Prompt
exterior shot keep building exactly as input drawing
Mood Board
strength 75
seed 3969
Start Creating Renders Now
Related Posts
Start Creating Renders Now
View more