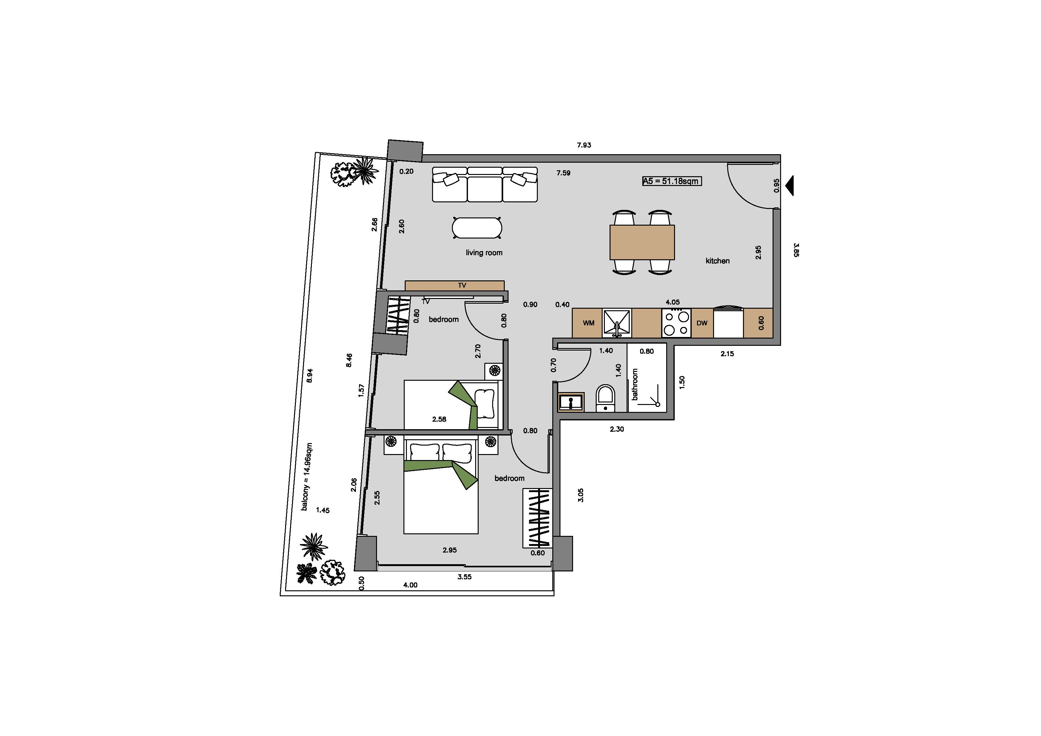
convert this floor plan into a realistic isometric 3d view of a full house show the space from an elevated angle with furniture walls and details visible floor tiles are grey colors are mostly white and a little wood color and some black balconies have red flowers and green plants use the same furniture as shows on the plan do not change the orientation of the floorplan