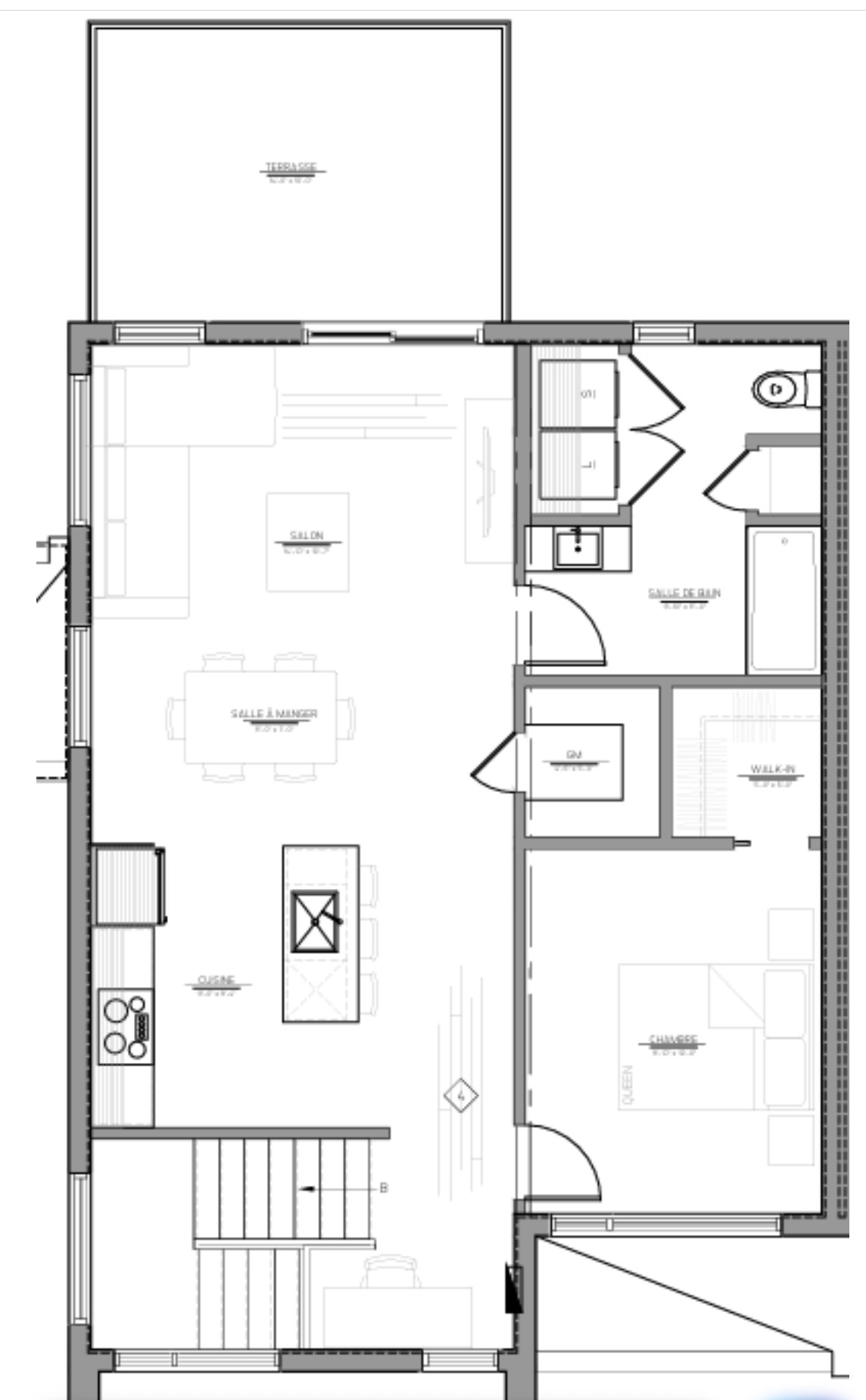
convert this floor plan into a realistic isometric 3d view of a full house show the space from an elevated angle with furniture walls and details visible minimalist decor scandinavian style flooring in wood in room and bathroom white door sofa beige bedding in white and beige bath in from the door in bathroom doors in white use the same furniture as shows on the plan do not change the orientation of the floorplan