archsynth
Sign Up
Open main menu
Image to 3d model
Compare
Testimonials
Contact us
Log in
→
Signup
Archsynth generation
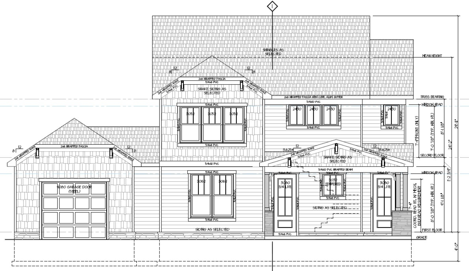
Input image
Copy Prompt
create a lifelike photo based on the architectural blueprint do not change anything structurally siding both shake and clapboard light beige garage door ultra grain medium brown gutters trim windows window surround white
Freestyle
strength 75
seed 10
Start Creating Renders Now
Related Posts
Start Creating Renders Now
View more