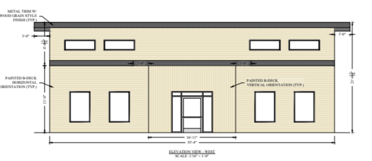
this building is called the mike glines athletic facility remove all lines and words on the elevation make the siding a dark metal horizontal siding where it shows horizontal and vertical where it shows vertical the rook will be a metal roof with a dark colored trim