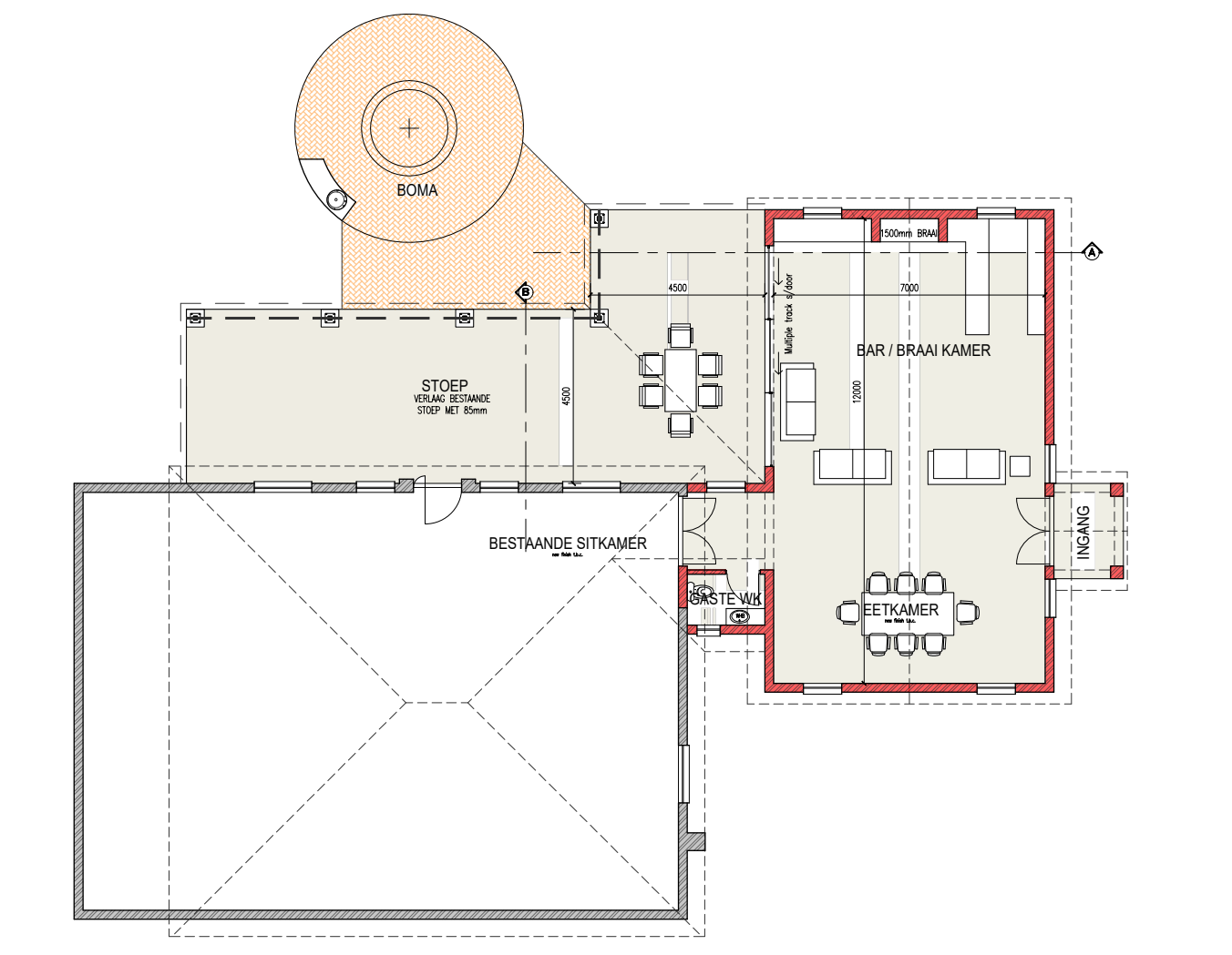
render the plan view add landscaping to the outside