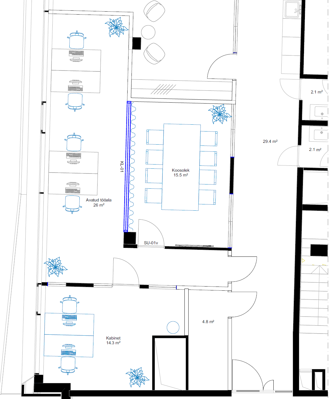
convert this 2d floor plan into a precise 3d architectural model strictly follow the floor plan geometry exact wall positions room sizes and proportions correct door locations and swing directions accurate window placement and height maintain spatial relationships exactly as drawn do not redesign or reinterpret the layout program open office workspace with desks aligned along the window wall enclosed meeting room with glass partitions in the center private office room corridor and entrance as shown furniture place desks and chairs exactly according to the plan positions meeting table centered with correct number of chairs keep furniture scale realistic and consistent materials keep simple and realistic white walls light oak furniture grey carpet flooring clear glass partitions lighting neutral daylight from windows only minimal artificial lighting do not redesign ceiling camera axonometric or slightly elevated perspective showing full layout clearly style clean architectural visualization minimal styling focus on accuracy over aesthetics maintain true proportions and layout fidelity