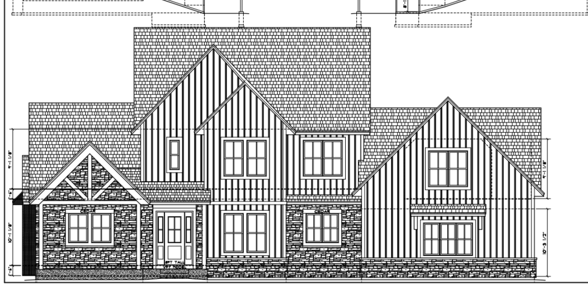
black board and batten siding with black shakes in the gable peaks make the front porch columns black make the stone accents grey along the bottom of the house make the roof over the entry door and the garage window black metal make the entry door black with glass