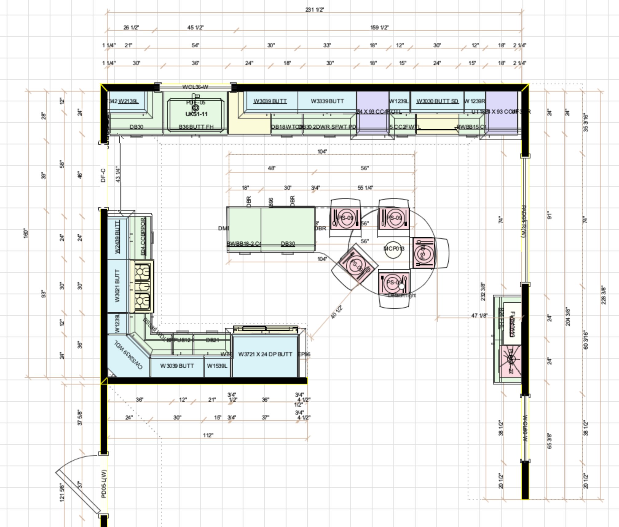
using maple almond cabinetry from waypoint living spaces for the perimeter and blue painted for the island and 48 cabientry area by the slider door style is 580 from waypoint flooring is allegiant walnut from coretec using champagne bronze hardware for the cabinetry and faucet stainless steel sink calacatta prado quartz countertops from msi whitish backsplash in geometric pattern appliances are stainless steel