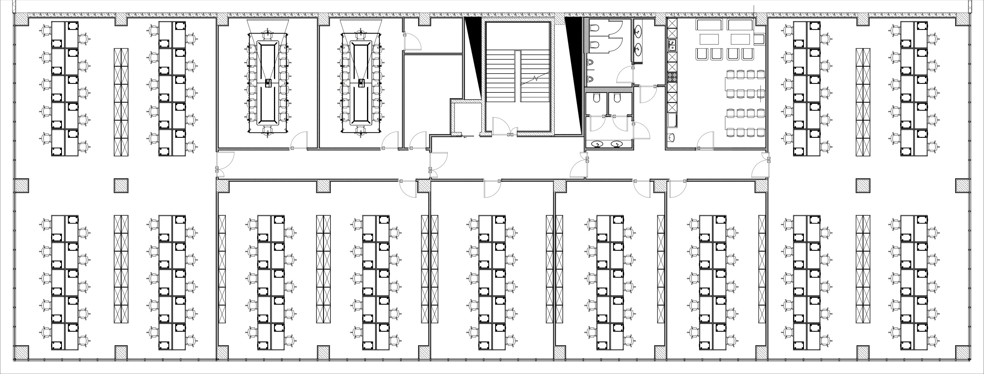
convert this floor plan into a realistic isometric 3d view of a office show the space from an elevated angle with furniture walls and details visible modern style offices with large format 120x120 cm flooring architectural concrete color and light ergonomic desks blue seat upholstery use the same furniture as shows on the plan do not change the orientation of the floorplan