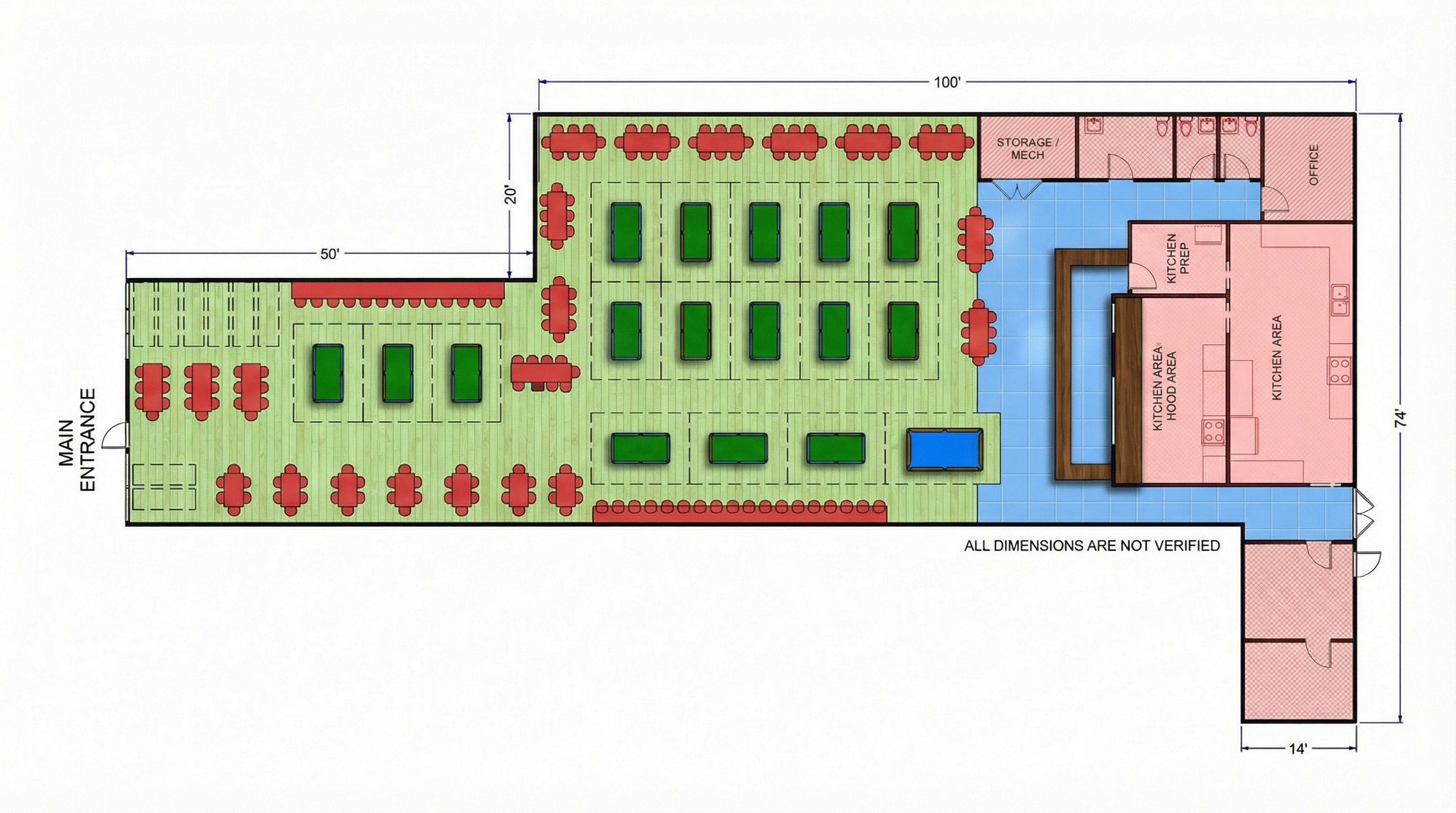
create a color floorplan and a full color photo rendering of this pool hall bar restaurant the pool tables in the green area are bar size the dotted lines around them are just shown for spacing the other symbols around that green pool table area are high top tables the blue area is the bar area with the brown part being the actual bar the pink area is the kitchen prep and bathroom areas the larger pool table with the blue playing surface is a 9 pool table pay attention to the dimensions shown and make the rendering and floorplan match the dimensions