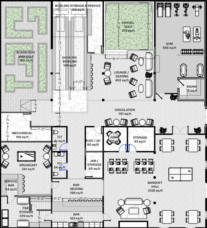
this is a new amenity space we are building for a new hotel all of these spaces are brand new and it includes a gym sauna space a virtual gold simulator a duckpin bowling a blacklit mini gold a speakeasy bar a main bar and a banquet hall for weddings and events with a fire place and lounge seating spaces render this plan using realistic materials and shadows and making the furniture look in 3d use the moodboard attached for materiality and colors keep the image orthographic but add shadows to make the furniture and walls stand out to make it appear in 3d