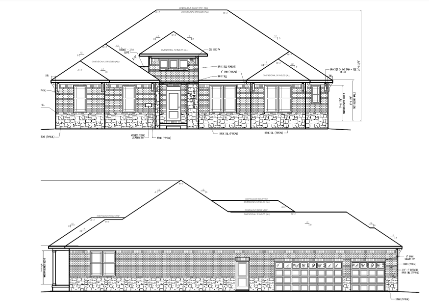
make a 3d model of this home that has a sideload garage on the left side of the house on a wooded lot with landscaping that doesn t block the driveway on a sunny day the lot slopes up from the front to the rear brick is twilight blend color from the reference windows are black from the reference shingles are charcoal from the reference gutters are black from the reference stone is london gray from the reference siding is urban bronze from the reference trim is felted wool from the reference front door is urban bronze from the reference keep all garage door bays keep corbels and hip roofs keep the hip roofs