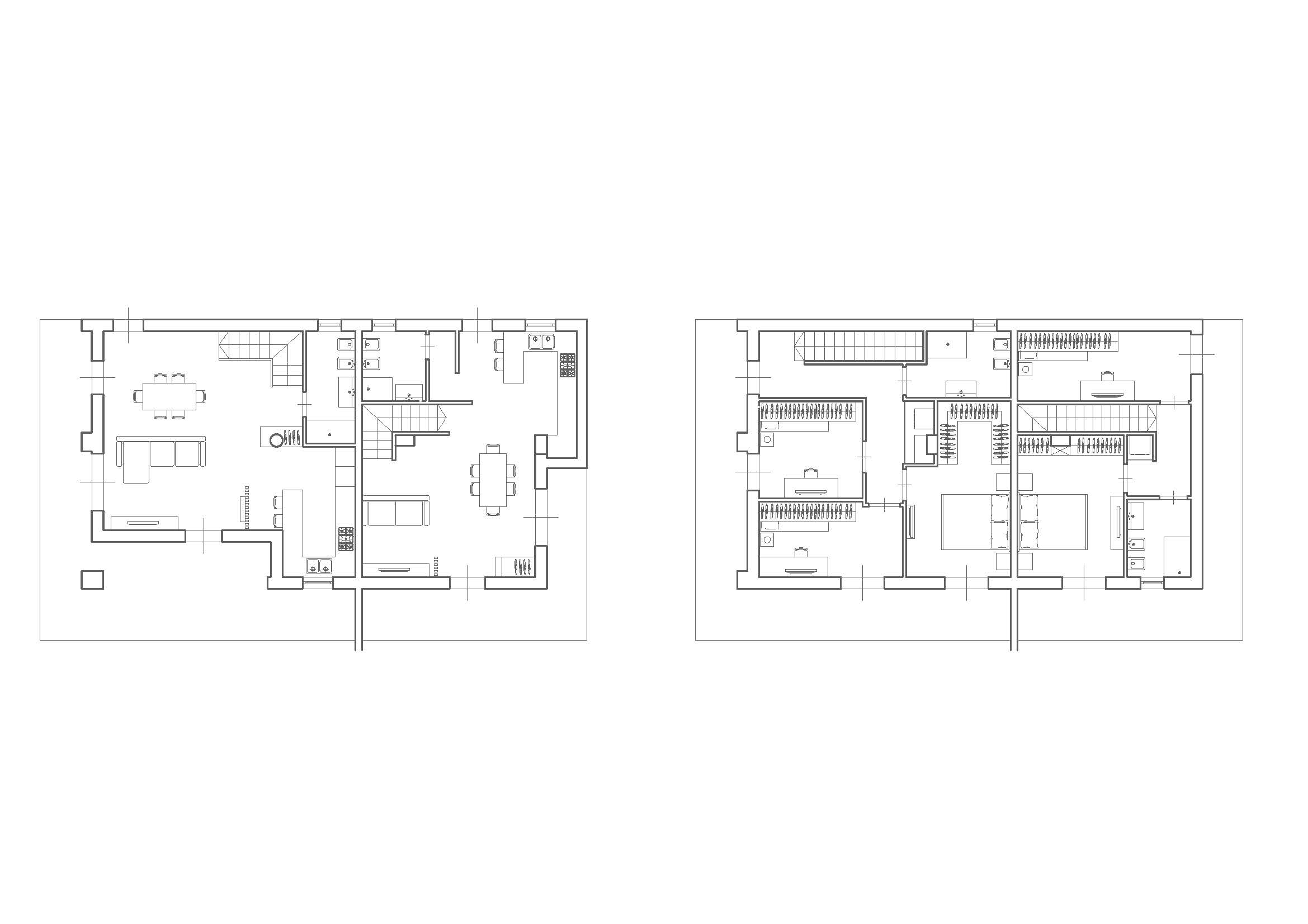
convert this floor plan into a realistic isometric 3d view of a full house show the space from an elevated angle with furniture walls and details visible detailed architectural axonometric drawing of a two level residential floor plan the first floor is connected to the second floor by an internal l shaped staircase the staircase is clearly visible with well defined steps landing and handrail clean technical representation thin black linework on a white background no realistic textures the two levels are vertically separated but aligned clearly showing the vertical connection between floors include minimal furniture for spatial context beds sofas tables isometric axonometric view at 45 degrees high clarity and readability contemporary architectural drawing style light shadows monochrome diagrammatic precise geometry no perspective distortion use the same furniture as shows on the plan do not change the orientation of the floorplan