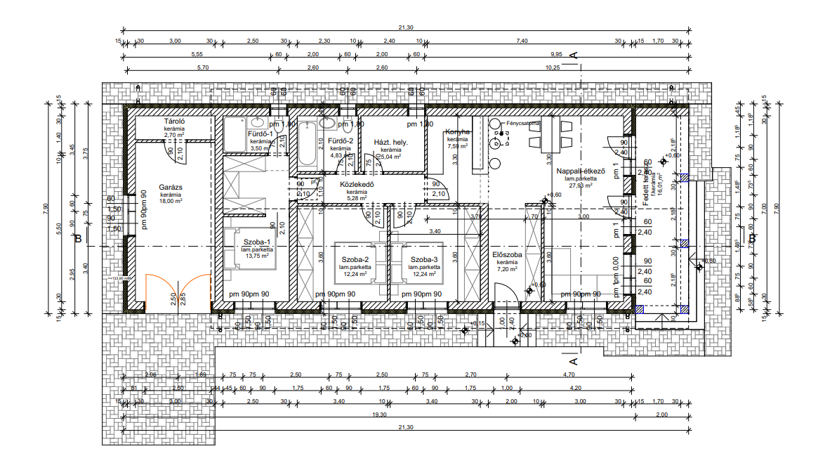
i want to see rendered interior based on the attached photo which is a layout