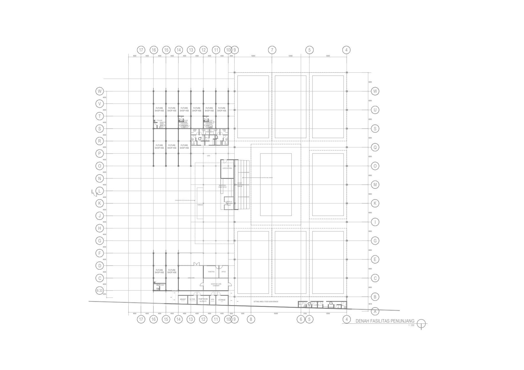
prompt for archsynth generate a clean 2d site layout plan for a padel sports complex based on the following requirements site rectangular plot bordered by 7 m road north 8 m road west 6 m road east place 8 international standard padel courts 20 m 10 m each arranged in two columns four rows with 2 5 m clear spacing around each court provide a central walkway spine north south between courts for circulation add supporting facilities spectator seating bleachers on the east side of courts podium and small plaza for ceremonies on the south side childcare area caf coworking meeting space and player lounges on the west side parking is outside the red boundary not inside the plot show clear vehicle and pedestrian access from north and west roads design must look event ready for international tournaments with modern layout functional zoning and efficient circulation output style top view architectural site plan black white line drawing cad like technical drawing