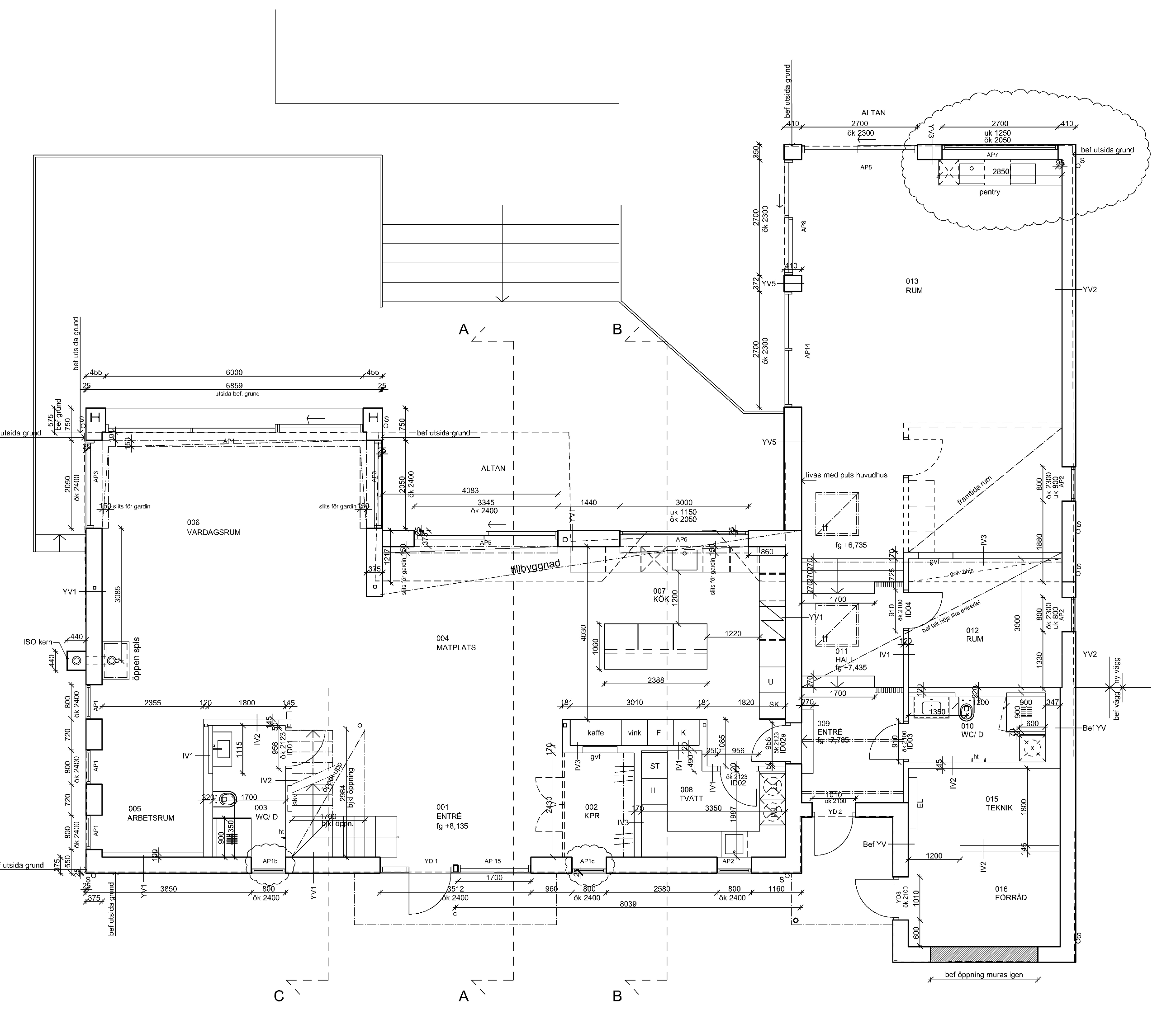
enerate a precise 3d architectural model from this 2d floor plan interpret all walls as load bearing exterior or interior walls with realistic thickness maintain exact wall positions openings and room layout use standard swedish residential wall thickness approx 300 mm exterior 120 150 mm interior unless otherwise indicated keep all door and window openings aligned exactly as drawn do not simplify geometry preserve all angled walls and projections ceiling height 2 5 meters unless otherwise specified focus on architectural accuracy rather than interior design architecture