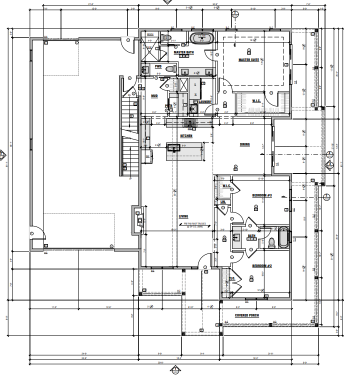
floorplan analysis the floorplan serves as the base layer to understand the spatial layout including room sizes walls windows and doors 3d modelling using the floorplan a 3d model of the space is created this includes adding textures materials lighting and furnishings to enhance realism interactive elements incorporating interactive elements like doors that can be opened lights that can be turned on or off and other engaging features to make the walkthrough more immersive vr integration the 3d model is then integrated into a virtual reality platform enabling users to navigate the space as if they re physically present testing and refinement after the initial build testing is conducted for user experience ensuring seamless navigation and interaction within the space