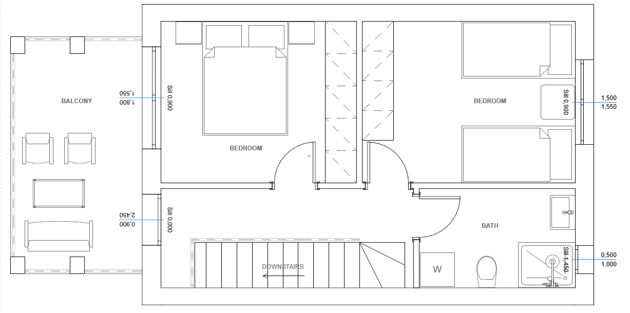
scandinavian style grey tiles in the balcony floor and in the bathroom glass railling in the balcony wooden stairs going downstairs from right to left glass railling in the stairs shower with glass cabine laminate floor in the bedrooms and the corridor do not move the basin in the bathroom add carpets in the bedrooms