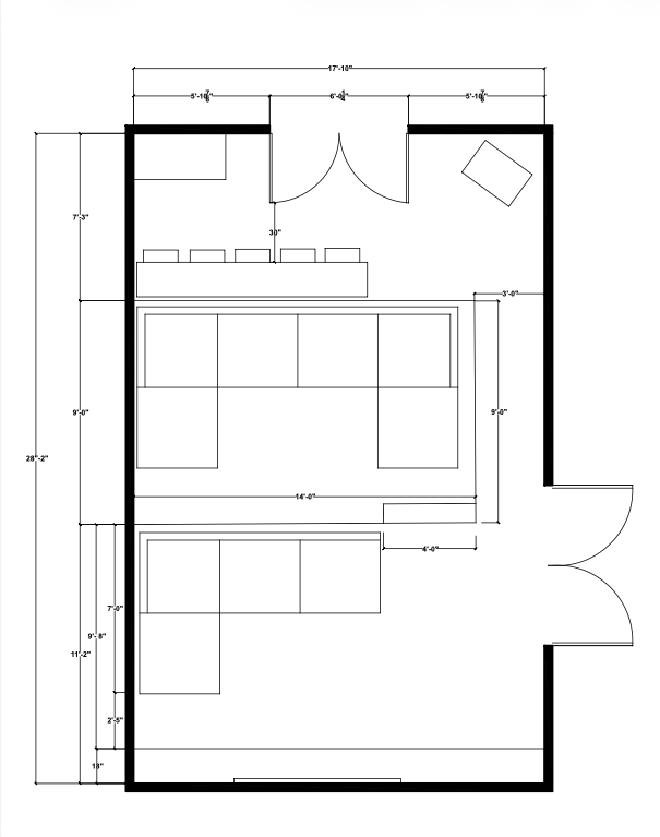
use floor plan space planning for furniture placement and design referred to references for furniture ideas and wall and ceiling design middle seating area on a platform with led lighting around the perimeter of the floor led lighting for counter bar area floor area