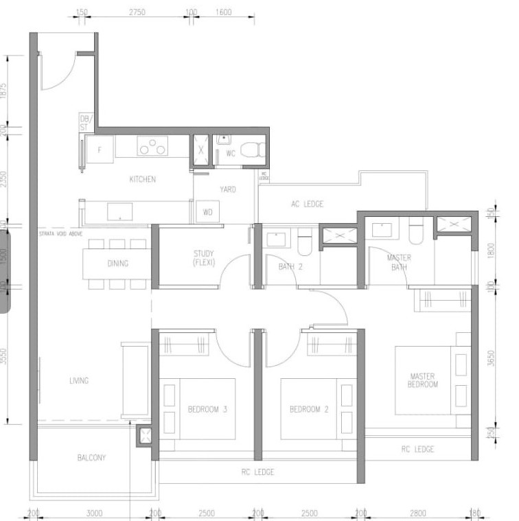
convert this floor plan into a modern isometric 3d view of a full house show the space from an elevated angle with furniture walls and details visible living room has a 5 meter height ceiling feature on the wall till ceiling use the same furniture as shows on the plan do not change the orientation of the floorplan